ASME · Algeria · 2019 · Power Plant

Power Plant Boiler Upgrade 530 t/h · 176 MW

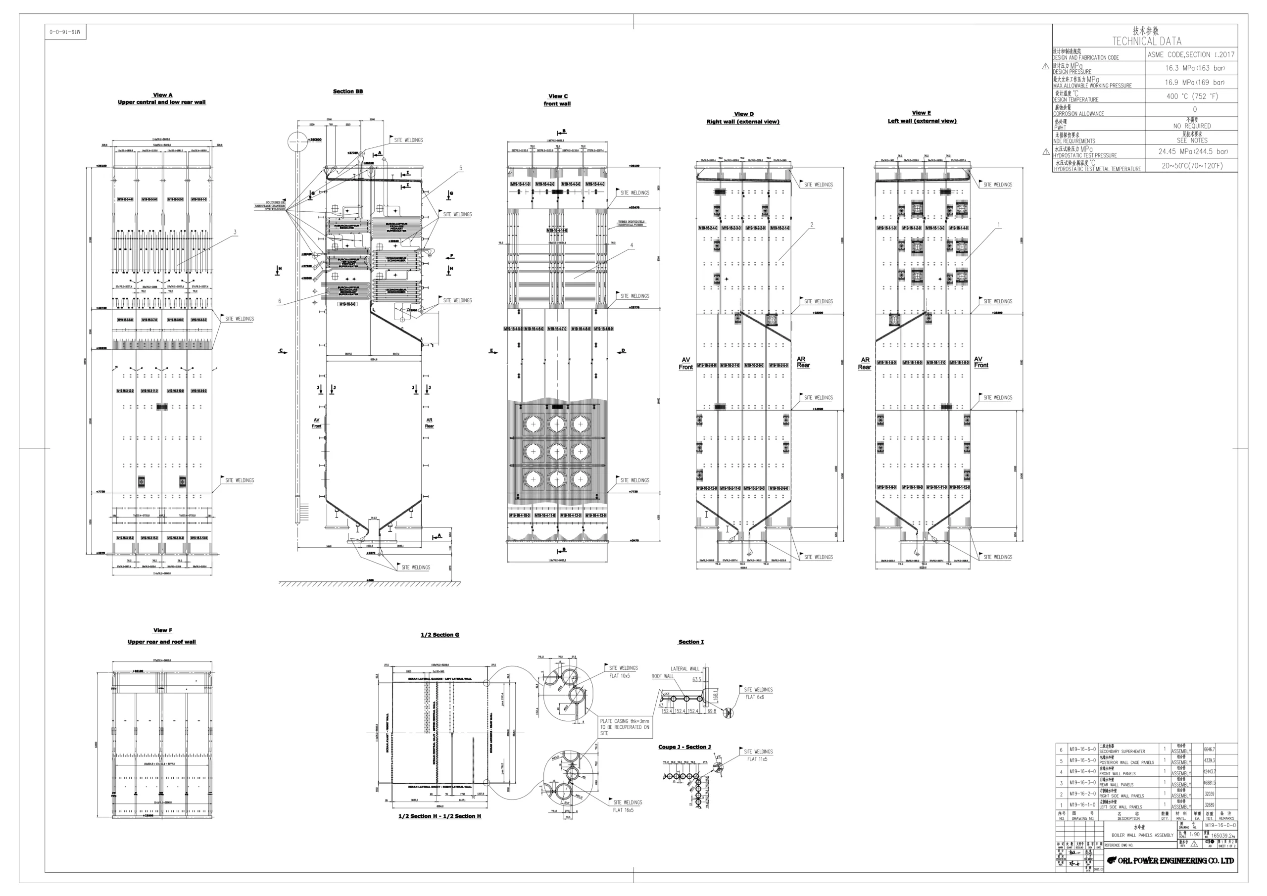
Retrofit fabrication support with compliance verification & inspection records for a 530 t/h, 176 MW power plant in Algeria.

Project Gallery

Project Photos

ASME 530t/h power plant boiler upgrade – Algeria 2019

Click any image to view in full size · 8 images in gallery

Project Snapshot

Project Information

Parameter Details
Product Power Plant Boiler Upgrade (530 t/h, 176 MW)
Design Code ASME
Country Algeria
Year 2019
Industry Power Plant
Scope Boiler Upgrade & Retrofit
Have a similar project?

Send your drawing or design conditions — we reply within 24 hours.